ORIGINAL MASÍV, s.r.o.

Die Garantie für die Rendite Ihrer Investition

« zurück
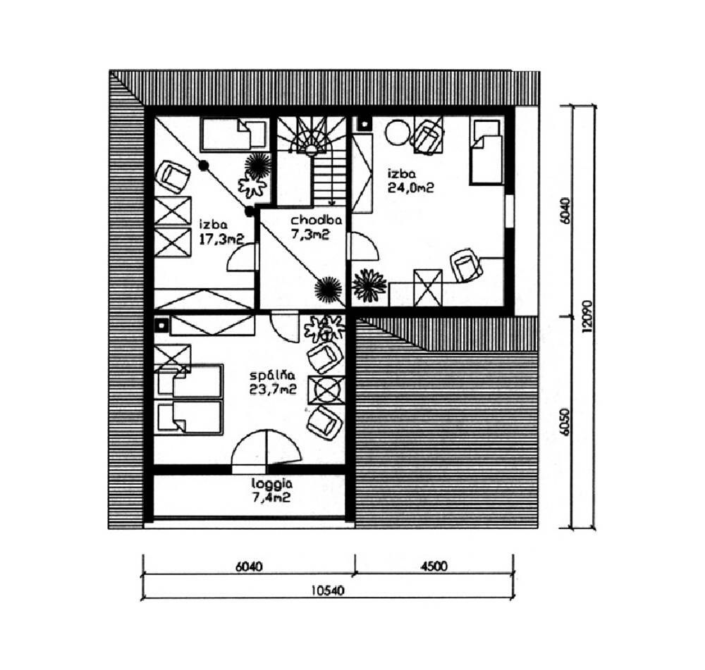
Startseite » Katalog » Blockhaus – Typ 20

Blockhaus – Typ 20

ORIGINAL MASÍV, s.r.o.
K cintorínu 852/51A, 010 04 Žilina, Slowakei
e-mail: orma@orma.at
Betreiber der Website ist die Gesellschaft ORIGINAL MASÍV, s.r.o. © 2002 - 2026
Anzahl der Besuche seit dem 15.05.2024: 89954
Anzahl der Besuche heute: 25
Umsetzung: K3 GROUP, s.r.o.